位于吳江區濱湖新城的這套房子,一進門就感覺空間大,再感覺還是空間大,而且是非常有特色的空間大,整體配色看似偏深,但由于極其流暢的動線,反而讓這種深成為最有記憶點的畫面。
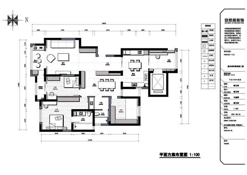
原本的戶型中,房子正中間是有個房間的,只有北面一點點窗戶,采光肯定是不足的,業主家基本是一家三口居住,只需要3+1房完全足夠,我們設計老師就有充分的理由進行了大刀闊斧的戶型改造,改造過后依然保持房間數量不變,但是這動線可真是太絕了!
相對傳統而言,意式輕奢更為簡約,質感更加光滑,設計線條更流暢,在功能性和顏值得以兼顧的情況下,不嘩眾取寵,正應了那句話“Less is more”。我們就來看看在這套大平層案例中,我們的設計老師究竟做了什么樣的戶型改造和細節亮點吧!
?我們先來看一下原始戶型交付痛點: 1??.房子正中間有個房間,采光偏暗; 2??.逃生樓梯區域面積很大,如何利用; 3??.原廚房面積過小,不夠用; ?平面方案布局改善: 1??.中間的房間三側把非承重墻體拆掉后,改造成了四個方面均可走動的餐廳,利用進門正對面的承重墻做了端景柜定制處理,顏值頗高,利用率也高; 2??.逃生樓梯當然是要保留的,但是與定制書柜一起做了隱形門處理,不打開根本就不知道里面竟然還有個樓梯門,此處區域做了全家都可用的書房,留了透明移門,光線從外側引入,比原始戶型的光線敞亮很多; 3??.原廚房做中廚處理,隔絕油煙,原餐廳做西廚處理,島臺和諸多電器的完美融合,一家人一起忙乎一頓晚飯,空間都綽綽有余! 端景柜的進深做的比較深,更加有一種延伸感,再配合燈光和玻璃質感,輕奢所特有的低調氛圍打造的就很足了。 非常注重細節的一處地方,入戶門做了門頭蓋板處理,與房門選同色,盡可能避免突兀的色塊! 做了滿柜電視背景,橫向型的比例果然在拉長視距方面無敵,整面墻顯得更長的同時,豎向性的線性燈卻好像按下了一個停止鍵,端莊大氣。 意式的大塊面沙發造型簡潔,看起來舒適,組合式的茶幾不光好用,也多了幾分隨心所欲搭配的趣味。 又見弧形!與客廳的埡口處一樣,作為空間分割最重要的處理方式,無論從質感還是造型上都時時刻刻吸引參觀者的目光。 過道空間很足,就在側面墻上增加一組儲物柜,留一點開放格做盲盒展示,小小的盲盒不僅是拆開的驚喜,也是親子時光的留存。 三通道設計,就這個角度看過去,廚房真的不算小了吧,別急,你還能看到更大的地方,往下看~ 簡單的吃個早飯,太太在煎蛋,先生坐在島臺邊聊一下今天的天氣,孩子的學習,是多少人的夢寐以求? 定制巖板臺盆,大抽屜永遠都比門板好用,里面可以自己再增加一些分割區哦。 原本主臥與兒童房間相鄰的墻體拆掉后往兒童房方向挪了一個衣柜的深度位置,以解決主臥沒有衣帽間的缺憾,當然兒童房是絕對沒有影響的。 左側白色門板處就是逃生樓梯的地方哦,你看關上后誰又能知道原本是個啥地方,還以為是特意這樣設計的呢! 是不是每個孩子都有一個高低床的夢?在這里可以實現她的各種奇思妙想,可以自己捉迷藏,可以從床上溜下來,看看她睡覺前收藏的寶貝還在不在~一個好美好的童年。




























