作為土生土長的蘇州人,年輕的時候為了工作,為了孩子,我們躋身于市區,感受的是熙熙攘攘的老蘇州街區文化,現在孩子在國外,我們退了休,希望能在一個安靜、舒適的環境中養老,這套房子裝修好后,朋友來家里做客都贊不絕口,舒適度很高,我們也很滿意!--取自業主楊女士的聊天所言。


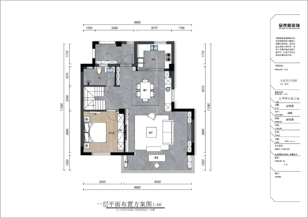
?平面方案布局改善:
1??.進門單獨的空間,去往入戶門處地面做的是與客廳同色地磚,落地玻璃處鋪貼防腐木地板,放置休閑椅,管道因為要檢修不能全封閉就做了裝飾處理,可可愛愛,一進門有了想駐足的欲望;
2??.一樓頂面現澆處理,肯定沒有共享空間來的那么舒服,但是沒關系,湯老師就做了無陽臺設計,地磚通鋪,因為外面低矮的風景我們必須一眼就能看到哇;
3??.衛生間的門改向到側邊,墻往里面挪個鞋柜的位置,這樣,功能兼備,鞋柜的收納也更厲害;
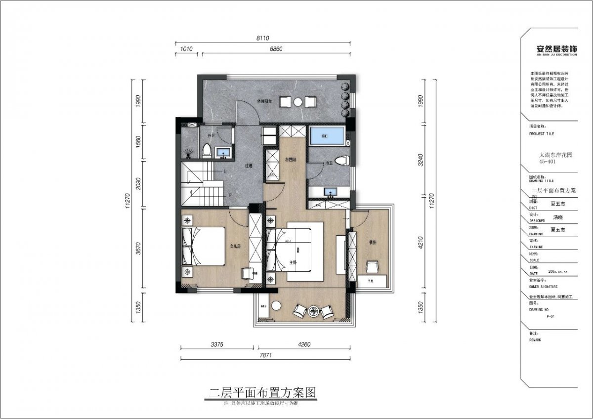
4??.一樓頂面做了現澆,隨之而來的二樓肯定也有了更多的空間規劃,再做個套房不就是信手拈來的平面設計嗎;
5??.因為業主不需要那么多空間,所以二樓除了南陽臺擴進來做了主臥的套房空間以外,其他比如北邊的露臺及閣樓上的露臺都只做封窗處理,留給了楊女士花花草草的空間,也更符合他們退休以后的安排

一梯一戶的房子,門口的空間都是我的!消防樓梯肯定是不要動的,但是裸露出來的管道可以纏個麻繩,做點裝飾,防腐木地板鋪設完成,簡單一個換鞋的區域都做的精巧有致,怪不得朋友來了都說這房子裝修的好呢!


餐廳做了餐邊柜,容納了中廚放不下的電器,貼心的留了水槽,也容納了早飯的簡單方便。


房子臨街,外面就是低矮的建筑物,再往前就是太湖邊,當初選房子應該也是考慮到飯后走過去的便利吧!



湯老師說:客廳的小白磚上墻,是閣樓空間用剩下的,靈機一動的就用在了這邊,不規則狀的圖案與灰藍色墻面結合,碰撞出幾分俏皮的感覺,現場業主贊不絕口



配色簡單,通透的玻璃移門不會有任何視線上的遮擋,保證整個空間的采光!



妥妥的套房設計,從衣帽間到單獨的書房,再到原來陽臺的休閑區設置,進門的柜子上還做了直飲水,方便我們半夜時候的喝水需求。

一樓留的客房,父母可以偶爾來住,可以呼朋喚友、一醉方休后小住一夜,色調只要清新淡雅即可!

墻上的藝術瓷磚是朋友相贈,與小草綠植相映成趣,也是一份吉祥的寓意!