現在的95后是懂裝修的,傳統意義上的婚房大抵逃不過來自雙方父母的審美,本案例的小夫妻在首次自己參與的裝修中給出了自己的主見:法式風。推開入戶門的瞬間,滿滿的法式浪漫氣息鋪面而來,給在外辛苦工作的人提供居家的絕佳靜謐氛圍感。想要打造一個誰也無法拒絕的法式浪漫,不僅僅是把元素堆砌,而是利用巧思達到設計上的和諧和統一,業主希望空間既能拉近彼此距離又可以保留私密性,對生活品質有一定的追求,幾經考量之下還是把墻面和地面做了改動,最終結合謝老師的想法碰撞出這一套獨屬于法式的浪漫住宅~

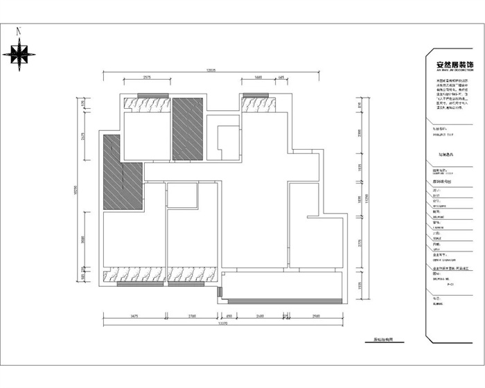
- 原始框架圖
?我們先來看一下原始戶型交付痛點:
1??.原始交付的結構中,客廳與陽臺之間的玻璃移門,壓縮整個公共空間的采光與面積;
2??.餐廳過小,沒有餐儲空間;
3??.4個房間暫時不能完全派上臥室的用場,如何更有效的利用。

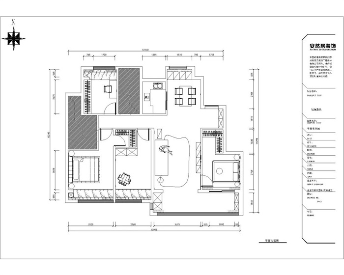
- 平面布局圖
?平面方案布局改善:
1??.原始戶型中的推拉門連同地面一起拆掉后,做了跟通處理,埡口不包門套,雖然很考驗油漆師傅的做工,但是不得不承認落地效果很贊;
2??.餐廳的東西向比較小,無法放置餐邊柜,還好有個飄窗,高度40公分做了加高的抽屜處理,上面放置巖板臺面,餐廳的儲物就解決了;
3??.在設計新房的時候,設計老師會考慮到未來10年以上的規劃,所以插座安排到位的情況下,做好基本的收納就可以,也方便以后更換家具位置。




客餐廳與過道用了拱形門洞的造型來過渡,搭配淺色乳膠漆,整體質感更加偏向輕盈。




不要茶幾!不要茶幾!不要茶幾!重要的事情說三遍,選擇這種可移動式的邊幾,哪里需要放在哪里,中間這么寬敞的過道難道不好用嗎?






法式的靈魂元素之一就是線條,立體的護墻板墻面設計能讓人更直觀的感受到藝術的魅力,并且在視覺上起到拔高天花板的妙用!

雖然不是落地的玻璃窗,但是因為整體空間設計的通透,所以看起來的視野相當不錯,小邊幾拉過來放把懶人椅,這氛圍絕了!




餐廳的整體配色與客廳一致,原本的戶型無法安置餐邊柜,就著飄窗的上沿做的柜子不違和,超大的臺面滿足了業主夫妻的小家電需求,既是餐邊柜也是西廚臺面!

主臥沿用客廳的設計感覺,搭配灰紫色床品,床頭的軟包設計一看就非常舒適,同時秉承“一切皆可挪動”的原則,用小邊幾代替床頭柜,以后邊上想加個嬰兒床都是分分鐘的事情。

書房,也可以稱之為多功能房,衣柜兼書柜一體,連飄窗都沒放過,巨大的收納可謂是充當了衣帽間的部分功能!

次臥外面是陽臺,視野絕佳!想必這件是留給父母住,動線合理、色調溫馨,有種謙謙公子如璞玉的感覺~